Trieste - Piazza Puecher - Stabile Intero

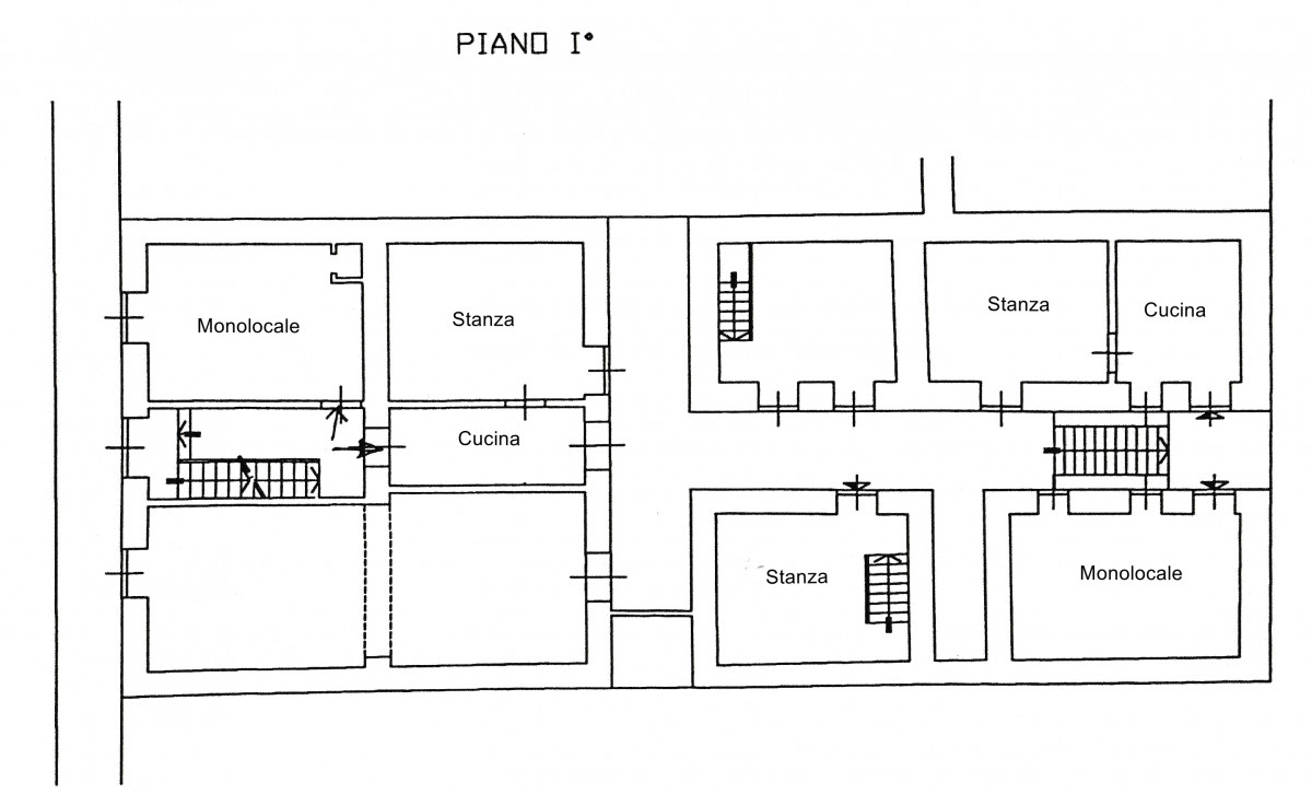
(clicca su foto ) - Piazza Puecher stabile completamente da ristrutturare e/o nuova costruzione ( 16 mc/mq circa ) Si possono realizzare circa 300 mq abitativi con una decina di posti auto. Le possibilità sono due : 1) Ricostruisco così come in origine ( vedi planimetria allegata ) e creo qualche posto auto. 2) Costruisco un nuovo edificio ( sfruttando al massimo cubatura e altezza ) da adibire ad abitazione/commerciale/posti auto. --- ---- PREZZO RICHIESTO 299.000 €uro

           


Crea il tuo sito Gratis, Facile e Professionale!
www.onweb.it

 

 

 

 

Servizio Clienti: 

 

 

ORARIO :

da Lunedì al Venerdì

dalle ore 9.00 alle 19.00   

orario continuato 

Si riceve esclusivamente su appuntamento.

 

      

Telefono :    040.977.69.27

 

 

WhatsApp :

0039 328 87 63 196

                     

 

 Sede  Operativa :

 Via dei Capitelli 19 - Trieste

 (  Piazza Barbacan - Arco di Riccardo )

 

 

 

 

 

 

 

Anno 1995 Esame di idoneità presso Camera di Commercio di Trieste per l'iscrizione al ruolo dei mediatori immobiliari

 

R.E.A 136686  Camera di Commercio della Venezia Giulia

 

P .iva 01261380321