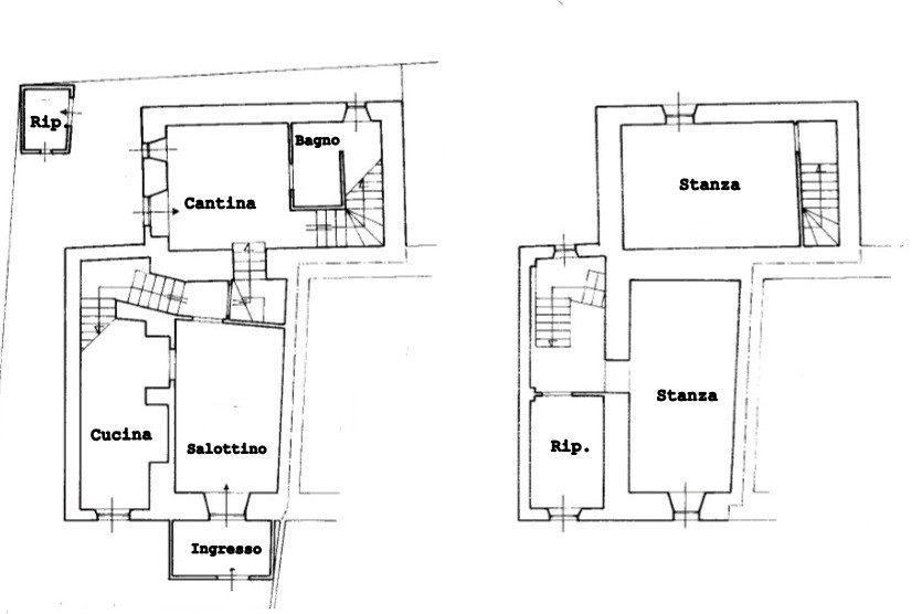
Trieste - Cattinara Villino d'epoca ristrutturato

( clicca su foto )- Cattinara casetta a schiera ristrutturata recentemente con cortile vista aperta/mare internamente composta da : ingresso, cucina, soggiornino, due camere, bagno,cantina ripostiglio finestrato, termoautonoma. Classse energetica G -PREZZO RICHIESTO 245.000€uro---------- Vendita in collaborazione con Fabris Immobiliare

             


Crea il tuo sito Gratis, Facile e Professionale!
www.onweb.it

 

 

 

 

Servizio Clienti: 

 

 

ORARIO :

da Lunedì al Venerdì

dalle ore 9.00 alle 19.00   

orario continuato 

Si riceve esclusivamente su appuntamento.

 

      

Telefono :    040.977.69.27

 

 

WhatsApp :

0039 328 87 63 196

                     

 

 Sede  Operativa :

 Via dei Capitelli 19 - Trieste

 (  Piazza Barbacan - Arco di Riccardo )

 

 

 

 

 

 

 

Anno 1995 Esame di idoneità presso Camera di Commercio di Trieste per l'iscrizione al ruolo dei mediatori immobiliari

 

R.E.A 136686  Camera di Commercio della Venezia Giulia

 

P .iva 01261380321